Serbenlager

60 Jahre "Lager Wattenbek" - eine Erinnerung  von Uwe Fentsahm, Brügge

 

Kiel im Zweiten Weltkrieg: Die verheerenden Ereignisse vom 7., 8. und 9.April 1941, d.h. die umfassende Bombardierung der Stadt, bei der 213 Todesopfer und 381 Verletzte und Vermisste zu beklagen waren, haben die in der Rüstungsproduktion tätigen Werften zu einer hektischen Suche nach neuen und sichereren Unterkünften für ihre zahlreichen in- und ausländischen "Gefolgschaftsmitglieder" veranlasst. Dabei wurden Bauplätze für Barackenwohnlager im Süden und Osten Kiels in Augenschein genommen, die in der Nähe von Bahnstationen lagen. Die Arbeitskräfte, bei denen es sich fast ausschließlich um Zwangsarbeiterinnen und Zwangsarbeiter handelte, sollten möglichst fußläufig zur Bahn gelangen, nach Kiel transportiert werden und vom dortigen Bahnhof wiederum zu Fuß zu den Werften gelangen.

 

Die Kriegsmarinewerft entsandte z.B. Anfang Juli 1941 einen Vertreter nach Bordesholm-Eiderstede, um die Ländereien des Bauern Stange zu besichtigen. Am Ende der Besichtigung wurde Herrn Stange kategorisch erklärt, "dass er seine Hauskoppel in kürzester Frist der Kriegsmarine-Werft für den Bau eines Barackenlagers für 1000 Arbeiter zur Verfügung zu stellen habe." Glücklicherweise war der Vertreter zu eigenmächtig und vorschnell vorgegangen. Der Landrat des Kreises Rendsburg legte sein Veto ein und verhinderte so die Errichtung des Lagers.

 

Die Deutsche Werke Werft (DWK) ging etwas geschickter vor: Sie nahm im Frühjahr 1941 Kontakt zum Brügger Bürgermeister und Gastwirt Johannes Stoltenberg auf. Dieser signalisierte die Bereitschaft des Landwirts Gustav Sander, eine Koppel zur Errichtung eines Barackenlagers zu verpachten. Dabei erwies sich der zuerst geplante Standort in Brügge als zu klein. Die Baracken mussten aufgrund der jüngsten Erfahrungen in Kiel u.a. weiter auseinander gebaut werden, d.h. der baupolizeilich vorgegebene Sicherheitsabstand war vergrößert worden. Gustav Sander offerierte der DWK deshalb das Endstück seiner langgezogenen Hauskoppel, das allerdings bereits auf Wattenbeker Gebiet lag. [Seit 1978 befinden sich dort die Straßen Birkenweg, Buchenweg und Saalskamp mit zahlreichen Wohnhäusern.]

 

Auf diese Weise wurde aus dem einstmals geplanten "Brügger Lager" das "Lager Wattenbek", das zu einem umfangreichen System von Lagern im 20-km-Umkreis von Kiel gehörte. Die DWK teilte dem Regierungspräsidenten in Schleswig am 1.Juli 1941 mit, dass nunmehr "endgültig folgende Lagerstandorte vorgesehen" seien: Raisdorf, Flintbek, Boksee, Wankendorf und Klein Barkau im Kreis Plön und Wattenbek im Kreis Rendsburg.

 

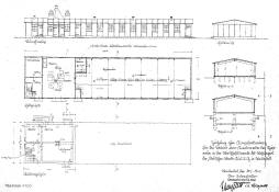
Der Landrat Peters in Rendsburg wurde auch um eine Stellungnahme gebeten. Er schrieb dem Regierungspräsidenten am 23.Juli: "Hinsichtlich des Wohnlagers in Wattenbek ist nichts mehr zu klären." Die Bauarbeiten auf dem 1,6 ha großen Gelände begannen und wurden offensichtlich von der Schrobdorffschen Bauverwaltungsgesellschaft in Berlin betreut. Darauf lassen jedenfalls Eintragungen im Melderegister der Gemeinde Wattenbek für das Jahr 1941 schließen: Es werden 15 Handwerker dieser Firma genannt, die für mehrere Wochen im Gasthaus von Friedrich Lüthje unterkamen. Diese "im Barackenbau tätigen" Fachleute sorgten für die Errichtung von 11 Wohnbaracken und je einer Wirtschafts-, Sanitäts-, Pförtner- und Waschbaracke. Außerdem gab es zwei Aborte, einen Kohle- und Geräteschuppen, zwei Splitterschutzgräben, einen Feuerlöschteich und einen Luftschutzbeobachtungsturm. Letzterer konnte aber auch als Wachturm mit Schießscharten benutzt werden. Das gesamte Lagergelände war mit einem Stacheldrahtzaun umgeben. Die in Wattenbek tätigen Bauhandwerker sind laut Melderegister "nach Flintbek verzogen" und es ist somit davon auszugehen, dass die Berliner Firma auch den Aufbau des DWK-Lagers in Flintbek übernommen hat.

 

Im November des Jahres 1941 sind die ersten 150 Spanier in die 11 Wohnbaracken eingezogen. Sie waren aufgrund eines staatlichen Arbeitsabkommens zwischen dem Deutschen Reich und Spanien als Rüstungsarbeiter nach Deutschland gekommen. Es kann davon ausgegangen werden, dass in jeder Wohnbaracke annähernd 50 Arbeiter untergebracht werden konnten, somit ergibt sich für das DWK-Lager in Wattenbek eine Belegungskapazität von 550 Personen. (Jede Wohnbaracke bestand aus 3 Zimmern mit je 8 oder 9 doppelstöckigen Betten.) Die Leitung des Lagers hatte Wilhelm Froböse aus Rendsburg übernommen. Nachweislich haben sich in den folgenden Jahren Staatsangehörige aus Belgien, den Niederlanden, Frankreich, Italien, Polen und der Sowjetunion im Lager Wattenbek aufgehalten. Es handelte sich in den meisten Fällen um (zivile) Zwangsarbeiter. Inwieweit das Lager auch zur Internierung von kriegsgefangenen Soldaten genutzt wurde, ist zur Zeit noch unklar.

 

Gegen Ende des Jahres 1942 sorgte ein Ereignis für große Aufregung in Bordesholm und Umgebung: "Am 16.Dezember 1942 ergriffen abends gegen 20 1/2 Uhr zwei verdächtige Personen in der Nähe des Lagers Wattenbek vor dem Oberwachtmeister der Gendarmerie Burmeister die Flucht. Dabei warf der eine von ihnen einen Beutel fort. In diesem Beutel wurden 10 Brote gefunden, die, wie sich herausstellte, bei dem Bäckermeister Schwartz in Bordesholm gestohlen waren. Am 25.Dezember 1942 wurde ein weiterer Beutel gleichfalls mit 10 Broten in der Nähe des Wohnlagers Wattenbek an einem Knick gefunden. Auch diese Brote stammten von dem Bäckermeister Schwartz." Dieser hatte aber noch gar nicht bemerkt, dass er in den letzten Wochen und Monaten regelmäßig bestohlen worden war. Es wurden eiligst die Mehlbestände kontrolliert und schließlich kam man zu dem Ergebnis, dass insgesamt rund 450 Brote fehlten. Die nachfolgende Untersuchung wurde vom Meister der Gendarmerie Stanislaus Barglinski geleitet. Er vernahm zahlreiche verdächtige Bewohner des Lagers Wattenbek, veranlasste die Verhaftung von 5 Franzosen und einem Italiener an ihrem Arbeitsplatz in Kiel und ermöglichte schließlich im November 1943 den Prozess vor dem Schleswig-Holsteinischen Sondergericht: Ein Franzose war in der Untersuchungshaft in Kiel verstorben. Der Italiener erhielt 3 Monate Gefängnis als Strafe. Von den verbleibenden Franzosen wurde einer freigesprochen, die anderen drei wurden zu 10 Monaten Gefängnis, 1 1/2 Jahren Zuchthaus und 1 Jahr Zuchthaus verurteilt. Der oben erwähnte zweite Brotbeutel war übrigens von zwei alteingesessenen Wattenbeker Bauern gefunden und abgeliefert worden.

 

Nach dem Ende des Zweiten Weltkrieges und der Besetzung Schleswig-Holsteins durch die Engländer im Mai 1945 erhielt das Lager Wattenbek eine neue Funktion. Es wurde offiziell ein DP-Lager für "displaced persons", d.h. in diesem Fall wurden alle Serben, die in der näheren und weiteren Umgebung als Zwangsarbeiter beschäftigt gewesen waren, nach Wattenbek gebracht. Sie mussten hier bis zum November 1946 auf ihre Repatriierung nach Jugoslawien warten. Viele von ihnen sind nicht wieder in ihre Heimat zurückgekehrt. Einzelne sind in Wattenbek geblieben und haben sich hier eine neue Existenz aufgebaut. Das Lager Wattenbek ist somit nur für die Zeit von 19 Monaten ein "Serbenlager" gewesen!

 

Seit 1946/47 sind die Wohnbaracken zur Unterbringung von Flüchtlingen und Vertriebenen genutzt worden. Die Kieler Werft DWK verkaufte ihre Immobilien in Wattenbek über die Tochtergesellschaft "Kieler Werkswohnungen G.m.b.H.": Die große Wirtschaftsbaracke wurde von der Gemeinde Wattenbek erworben, umgebaut und an zahlreiche Familien kostengünstig vermietet. Die Wohnbaracken sind teilweise in den Besitz der Grundeigentümer (Familie Sander, Brügge) übergegangen und vermietet worden. Insgesamt hat sich das Lagergelände nach 1946 zu einem ersten Gewerbegebiet in Wattenbek entwickelt, denn hier wurden zahlreiche Firmen gegründet: Helmecke (Optik), Saemann (Plattenspielerkoffer), Langebeck (Fuhrunternehmen), Siebenhausen (Strickwaren), Uhing (Uhren), Noack (Stellmacherei), Radomski (Schrotthandel).

 

Im Zuge des wirtschaftlichen Aufschwungs in den fünfziger Jahren haben diese Firmen das Lagergelände aber schon bald wieder verlassen und sich anderswo in Wattenbek oder der näheren Umgebung angesiedelt. Im Zuge des landesweiten Barackenräumungsprogramms war seit Beginn der sechziger Jahre immer wieder versucht worden, das Lager Wattenbek aufzulösen, den Bewohnern Einfamilienhäuser und Eigentumswohnungen nachzuweisen und die Baracken abzureißen. Dies war ein schwieriger und langwieriger Prozess, der erst im Jahre 1968 mit dem Abriss der letzten Baracke beendet wurde. Danach hat das Gelände offensichtlich der einheimischen Jugend noch 10 Jahre lang als Abenteuerspielplatz zur Verfügung gestanden.

 

Bilder des Lagers: 1941-1946

 

Polnische Zwangsarbeiter im Lager